VILLA DEL ARTE – zwischen Stadt, Meer und Hochgebirge VERKAUFT!
Beschreibung

„Sprachlos“ – auf diese treffende Zusammenfassung haben wir uns geeinigt, nachdem wir erstmals die Lage, den umwerfenden Panoramablick und die architektonische Komposition dieses einmaligen Anwesens gesehen haben. Mit dem Material der umgebenden Felswände des Taygetosgebirges wurde traditionelle Bauweise und moderne Architektur auf einzigartige Weise kombiniert. Ein altes Natursteinhaus aus dem 19.Jahrhundert wurde wieder zum Leben erweckt, indem ein erdbebensicheres Betonskelett eingezogen wurde und die alten Steine gereinigt und neu verfugt wurden. Terrassen auf drei verschiedenen Ebenen verbinden es mit dem Neubau eines zweistöckigen Ateliers, das multifunktional auch als eigene Wohneinheit verwendet werden kann. Eine nahezu monumental wirkende Fassade aus zwei 6,30m hohen Steinbögen thematisieren das Tor zu Halbinsel Mani, die für seine wehrhaften Steinbauten bekannt ist und hier genau hier in Verga beginnt. Zusammengefaßt bietet dieses Anwesen drei Wohneinheiten, verbunden durch vielgestaltige Terrassen und den baumbestandenen Innenhof.
Ebene 1 (Straßenniveau)
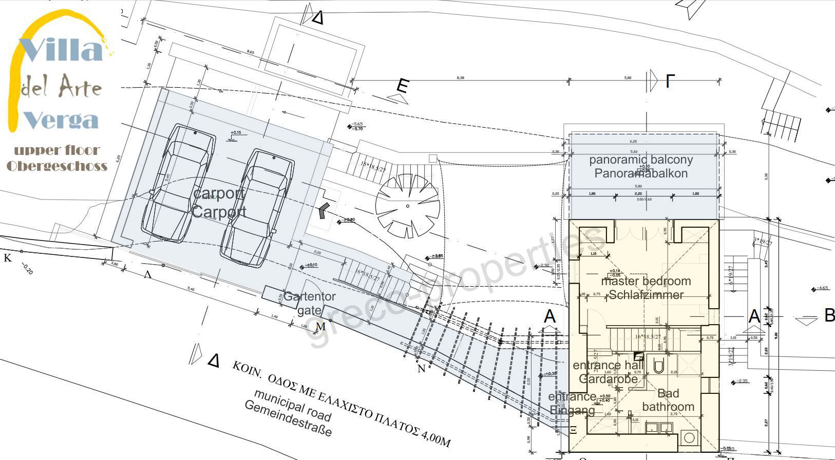
Eine 2m hohe Natursteinmauer schirmt das Anwesen auf seiner Rückseite gegen die kaum befahrende Gemeindestraße ab. Der Carport oberhalb des Neubaus bietet zwei Stellplätze, daneben befindet sich ein separates Gartentor, durch das Sie zum Eingang des Altbaus auf der obersten Ebene gelangen. Von der Garderobe der Eingangsdiele führt eine Holztreppe in den darunter liegenden Wohnbereich. Im oberen Geschoss befindet sich das „Master-Bedroom“, von dessen Terrasse Sie einen atemberaubenden Blick auf die messenische Bucht und die Provinzhauptstadt Kalamata genießen. Neben dem Eingang befindet sich ein geräumiges Bad.
Ebene 2 (mittleres Niveau)
Der gemütliche Sitzbereich ist am Meerblick ausgerichtet. Die offene Holztreppe trennt die Küche vom Essbereich, der von einem langen Holztisch dominiert wird. Die Küche hat einen eigenen Ausgang in den „hinteren“, terrassierten Gartenbereich. Die Mauern der umgebenden Gebäude beschreiben einen Innenhof, der zum Verweilen einlädt. Diese großzügige Panoramaterrasse wird vor dem Wohnzimmer von einem Sonnensegel beschattet. Eine unter Rundbögen versteckte Anrichte ergänzt die Küche und erleichtert die Handhabung. Auf der gegenüberliegenden Terrassenseite betritt man die Galerie des Obergeschosses des Neubaus, von der man in den 5,50m hohen Raum des Ateliers blickt. Hier „schwebt man“ durch die zweistöckigen Fensterfronten über dem Blau der Bucht von Kalamata. Ein „schwindelerregender“ Arbeitsplatz am Laptop, ein Ruheort mit Relax-Sessel oder mit einer neu einzuziehenden Holzdecke ein zusätzliches Schlafzimmer?
Ebene 3 (unteres Niveau)
Eine freie Holzwendeltreppe verbindet die Galerie mit dem eigentlichen Künstleratelier, das je nach Wunsch und Anspruch des Eigentümers genutzt werden kann, zum Beispiel als Apartment oder Gymnastikraum mit grandiosem Ausblick. Ein Bad/WC schafft alle dafür notwendigen Voraussetzungen. Imposante, fast dreistöckige Steinbögen sind durch ein modernes Plexiglasdach abgesetzt. Ein kleiner Pool lädt im Sommer vor dieser repräsentativem Front zur Erfrischung mit Fernblick ein. Die Poolterrasse schafft wiederum eine Verbindung zu einer 40m² großen Einliegerwohnung (Studio) im gegenüberliegenden Altbau. Dieses Apartment hat einen eigenen Eingang, ein eigenes Bad, eine überdachte Terrasse sowie einen Abstellraum (Kellerraum), in dem sich auch der Warmwassertank des Hauses befindet. Der Wohnbereich der Einliegerwohnung wird durch eine rückwärtig gelegene Gartenterrasse erweitert, die im Sommer als Schattenplatz willkommen ist.
Ebene 4 (Gartenniveau)
Steintreppen führen in den von Zitrus- und Olivenbäumen bestandenen Garten. Der ertragreiche Walnussbaum ist der Stolz jeden Gartenliebhabers.
Im Abstellraum für Gartenmöbel und –geräte etc befindet sich auch die Pooltechnik.
Anmerkung: die Fotos zeigen die Villa und Umgebung Anfang Januar 2024.
Flächen
Wohn-/Nutzfläche 214,02m²
> Wohnfläche 201,82m²
> Nutzfläche 12.20m²
Überdachte Aussenbereiche 29,77m²
davon >
Ebene 1 (oberes Geschoss = Straßenniveau)
Wohnfläche Altbau 52,20m²
Carport als Pergola 34,50m²
Panorama-Terrasse 19,14m²
Ebene 2 (mittleres Geschoss = Terrasse mit Sonnensegel)
Wohnfläche Altbau 71,34m²
Wohnfläche Neubau 13,48m²
Außenküche überdacht 5,55m²
Ebene 3 (unteres Geschoss = Poolebene)
Wohnfläche Altbau (Einliegerwohnung) 40,00m²
Wohnfläche Neubau 24,50m²
Nutzfläche Kellerraum Altbau 12,30m²
überdachte Terrasse 11,62m² + 12,60m² = 24,22m²
Pool brutto 8,70m² / netto 3,70m x 2,35m = 5,92m² / Tiefe 1,55m
Ebene 4 (Garten)
Technikraum (Pool) 9,64m²
Grundstück 727m²
Ausstattung
+ Fliesenböden
+ Aluminiumfenster/-türen mit Fliegengitter
+ Küchenmöbel mit Herd und Ofen
(Anschluss für Spülmaschine ist vorhanden)
+ Warmwasserbereitung mit Wärmepumpe
+ Klimaanlage (Heizung/Kühlung) im Master-Bedroom
+ Holzfeueröfen Haas & Sohn im Wohnzimmer (9KW) und Atelier (6KW)
+ Waschmaschine im Bad Ebene 1
+ Webcam
+ WLAN kabellos über Sky Telecom
+ Telefon Festnetzanschluss ist vorbereitet und möglich
Lage / Infrastruktur
Seehöhe 325m NN
Luftlinie zum Meer 1.000m
Tavernen, Restaurants, Bars
In nur 150m Entfernung befindet sich fußläufig eine familiär betriebene Taverne sowie in nur 500m ein neues Kaffeehaus, das an Wochenenden geöffnet ist. Nur 2km sind es zum legendären “Kastraki”, ein Restaurant mit Bar für alle Einheimischen der nahegelegenen Stadt, die sehen und gesehen werden wollen.
Geheimtip gefällig? Nur 5km sind es zum Fischlokal “Ximeroma” am Meer.
Strand & Meer
Die weißen Stein- und Kieselstrände der “Riviera von Kalamata” mit diversen Strandbars erreichen Sie in nur 6 Fahrminuten (4 km Entfernung), den fast 3km langen Sandstrand von Kalamata in 10 Fahrminuten (5,5km).
Einkaufen
Minimarket, Apotheke, Metzgerei und Bäckereien finden Sie vor Ort in Kato Verga. Der nächste LIDL-Supermarkt ist nicht weit (6km oder 12 Fahrminuten). Darüber hinaus finden Sie vor Ihrer Haustüre die gesamte Infrastruktur der Provinzhauptstadt Kalamata (nur 15 Fahrminuten).
Freizeitaktivitäten
Bootsausflüge (Messinia Explorer), Wassersport (Surfverleih, Surfschule), Fahrradtouren (Verleih und Reparatur), Bergsteigen und Wandern im Taygetosgebirge und der Halbinsel Mani (Bergsteigerverein Kalamata), Paragliding (Ano Verga, 7km).
Flughafen
Autobahnanschluss zum nahegelegenen internationalen Flughafen Kalamata (Fahrzeit nur 20 Minuten). Von hier fliegen Sie schnell und unkompliziert zu ca. 30 Destinationen in Europa.
Entfernungen
| ORTE | ||
| Kalamata Stadtmitte | 9,5km | 0:15 h |
| Koroni | 64km | 1:05 h |
| Pylos | 63km | 1:00 h |
| Sparta | 65km | 1:20 h |
| Tripolis | 92km | 1:00 h |
| Kardamili (Äußere Mani) | 34km | 0:40 h |
| Areopolis (Innere Mani) | 78km | 1:30 h |
| GOLFPLÄTZE – WELLNESS RESORTS | ||
| Navarino Dunes | 65km | 1:00 h |
| Navarino Bay – Agorá (Marktplatz) | 61km | 0:55 h |
| Navarino Hills | 61km | 0:55 h |
| FLUGHÄFEN | ||
| Flughafen Kalamata | 21km | 0:20 h |
| Flughafen Patras-Araxos | 193km | 2:20 h |
| Flughafen Athen | 276km | 2:40 h |
| FÄHRHAFEN | ||
| Fährhafen Patras | 220km | 2:45 h |
Pläne
Hinweise
Alle Angaben erfolgen laut Verkäufer, ohne Garantie auf Vollständigkeit und Richtigkeit seitens des Maklers. Es gelten die AGB, die jederzeit einsehbar sind. Die Maklercourtage beträgt 3,72% inklusive MwSt. und beinhaltet auch die Organisation der Vertragsabwicklung.
Gesetzliche Nebenerwerbskosten für Grunderwerbssteuer, Notar, Rechtsanwalt und Registeramt derzeit ca. 7,5%
Energieausweis PEA nach Gesetz 3661/2008 ist beauftragt
Zwischenverkauf vorbehalten
Details
Kennzahlen
Ausstattung
Kartenansicht

Tel.: +49 (0)171-1251460
greco_gr@otenet.gr
Sie möchten mehr über diese Immobilie wissen? Hier können Sie weitere Infos anfordern:


































