CYCLADES I weißes Inselhaus mit modernem Flair, 3 Schlafzimmer
Beschreibung
Ein strahlend weißes Inselhaus im typischen griechischen Stil – klar, elegant und harmonisch eingebettet in einem Meer von Ölbäumen. Das flache Dach und die kubische Architektur erinnern an die Tradition der Kykladeninseln, während die moderne, stilvolle Einrichtung höchsten Wohnkomfort bietet. Weiß getünchte Wände, klare Linien und stilvolle Details schaffen eine ruhige, ansprechende Atmosphäre – perfekt für Ihr Domizil in Messenien! Von der großzügigen Terrasse genießen Sie den unverbaubaren Blick über die flache Hügellandschaft auf das Ionische Meer mit seinen vorgelagerten Inselwelt. Eine weitere Terrasse auf Gartenebene schafft den Übergang in den umgebenden Olivenhain.
Der Wohnbereich: offenes Raumkonzept mit viel Tageslicht und eleganter Einrichtung, die integrierte Küche mit Tresen ist funktional und zeitgemäß
Der erste Schlafbereich: 2 Schlafzimmer: hell, großzügig und mit geschmackvoller Möblierung und einem modern ausgestatteten Bad mit Wanne
Der zweite Schlafbereich: helles Schlafzimmer mit eigenem Duschbad, das durch das einfache Einsetzen einer zusätzlichen Türe zum En-Suite-Bad gewandelt werden kann
Das Anwesen ist vollständig eingezäunt, und mit einem elektrisch steuerbarem Gartentor versehen. Es steht ein betonierter, großzügiger Zufahrtsbereich mit Parkmöglichkeit zur Verfügung. Olivenhain mit ca. 30 Ölbäumen.
Sehr gepflegter Zustand.
Flächen
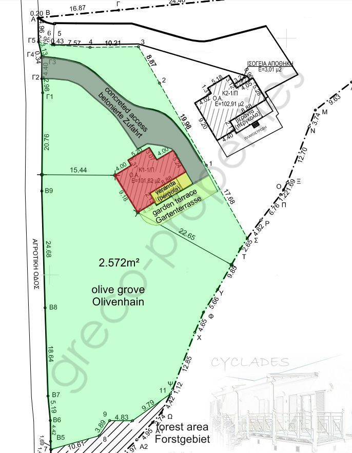
Wohnfläche 101,82m²
Veranda 26m²
Gartenterrasse ca. 50m²
Betonierte Zufahrt 192m²
Grundstücksfläche 2.572m²
Ausstattung
+ Klimaanlage für Kühlung und Heizung im Wohnbereich
+ elektrische Hub-Pergola auf der Terrasse
+ elektrisch steuerbares Gartentor
+ Außenbeleuchtung mit Dämmerungsfunktion
+ Bewässerungssystem mit Pumpe
+ Ladestation für Elektrofahrzeuge
+ Wasseraufbereitung durch Umkehrosmose (Culligan)
+ Internet / WLAN
+ Wandsafe mit Zahlenschloss
+ Möblierung: Einbauschränke, Stauraumbetten
Lage/Infrastruktur
Seehöhe 135m NN
Luftlinie zum Meer 2500m
Das Haus “CYCLADES” liegt auf einem flachen Hügelplateau mit lockerer Ferienhausbebauung, inmitten unendlich weiter Olivenhaine. Es ist über eine 700m lange, gut fahrbare Schotterstraße ohne nennenswerte Steigungen bequem zu erreichen.
In nur 1.700m Entfernung befindet sich fußläufig das ganzjährig bewohnte Dorf Evangelismos. Dort finden Sie für die Grundversorgung einen Kramerladen, ein traditionelles Kaffeehaus und eine namhafte Taverne.
Zum Einkaufen für den alltäglichen Bedarf und zum Meer fahren Sie mit dem Auto in nur 6 Minuten (3,5km) zur Küstenstraße in Kamaria: dort befindet sich ein Supermarkt, eine Bäckerei und eine gut sortierte Metzgerei.
In Finikounda (5,5km/ 8 Fahrminuten) befinden sich ein Supermarkt, 2 Minimarkets, 2 Bäckereien, 2 Metzgereien, Apotheke, Bankautomaten. Darüber hinaus finden Sie in Finikounda und den umliegenden Dörfern eine Vielzahl von Tavernen und Bars / Cafés, die auch teilweise im Winter geöffnet sind.
Große überregionale Supermärkte befinden sich in Pylos (17km, A/B Supermarkt).
Freizeitaktivitäten in Finikounda: Bootsausflüge (Verleih im Hafen von Mai bis September), Wassersport (Surfverleih, Surfschule), Fahrradtouren (Verleih und Reparatur vor Ort)
Über den nahegelegenen Flughafen Kalamata erreichen Sie Haus CYCLADES teilweise ganzjährig (außer Dezember und Januar) schnell und unkompliziert von ca. 30 Destinationen in Europa.
Entfernungen
| ORTE | ||
| Finikounda | 5,5km | 0:08 h |
| Methoni | 9km | 0:13 h |
| Koroni | 26km | 0:28 h |
| Pylos | 17km | 0:20 h |
| Gialova | 26km | 0:30 h |
| Kalamata Stadt | 62km | 1:15 h |
| Kyparissia | 70km | 1:10 h |
| GOLFPLÄTZE – WELLNESS RESORTS | ||
| Navarino Dunes – Westin – The Romanós | 34km | 0:40 h |
| Navarino Bay – Agorá (Marktplatz) – Mandarin Oriental | 25km | 0:30 h |
| Navarino Hills | 25km | 0:30 h |
| FLUGHÄFEN | ||
| Flughafen Kalamata | 53km | 1:00 h |
| Flughafen Patras-Araxos | 195km | 2:45 h |
| Flughafen Athen | 311km | 3:30 h |
| FÄHRHAFEN | ||
| Fährhafen Patras | 220km | 3:00 h |
Pläne
Hinweise
- Alle Angaben erfolgen laut Verkäufer, ohne Garantie auf Vollständigkeit und Richtigkeit seitens des Maklers. Es gelten die AGB, die jederzeit einsehbar sind. Die Maklercourtage beträgt 3,72% inklusive Mwst. und beinhaltet die Organisation der Vertragsabwicklung.
- Gesetzliche Nebenerwerbskosten für Grunderwerbssteuer, Notar, Rechtsanwalt und Registeramt liegen derzeit bei ca. 7,5%
- Die Legalisierung nach Gesetz 4178/2013 ist abgeschlossen
- Energieausweis ΠΕΑ, gültig bis 29.06.2035
Energieklasse D, Verbrauchsausweis 104kWh/m² p.a. - Zwischenverkauf vorbehalten
Details
Kennzahlen
Ausstattung
Kartenansicht

Tel.: +49 (0)171-1251460
greco_gr@otenet.gr
Sie möchten mehr über diese Immobilie wissen? Hier können Sie weitere Infos anfordern:
























